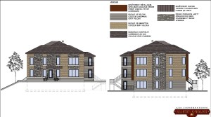
12-456SS-Élévation avant et arrière_1 2 23 septembre 201423 septembre 2014 Charles PerreaultLaisser un commentaire